全国服务电话

400-888-7992

济南中鼎升降机械有限公司-产品中心

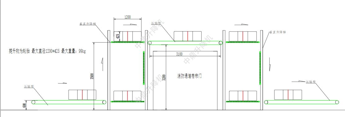
首页 > 产品展示 > 提升机 > 叉臂循环式提升机

跨越走廊空中输送线叉臂循环提升机

产品简介

在线报价

QQ: 升降机

微信:19720542668(点击拨打)

订购电话:

400-888-7992

微信扫一扫


产品详情






短信 电话